Quadrilocale in vendita

Moncalieri, Via tetti piatti - Tetti Piatti
€ 244.000
Prezzo aggiornato
4 locali 4 locali
119 Mq 119 Mq
2 bagni 2 bagni

Quadrilocale in vendita

Moncalieri, Via tetti piatti - Tetti Piatti

Descrizione annuncio

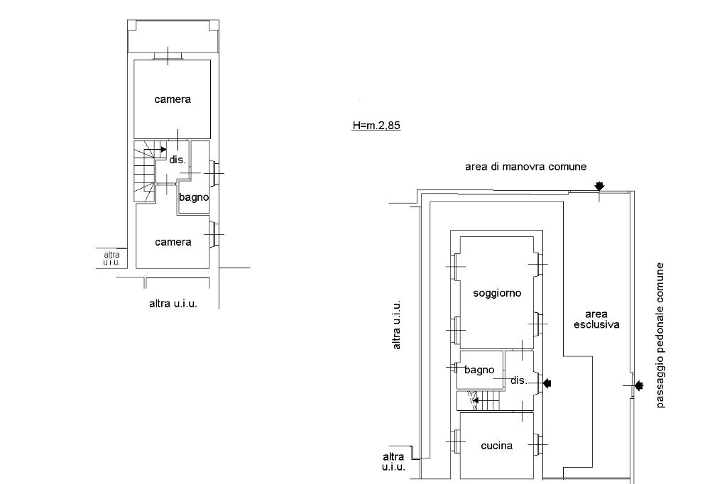
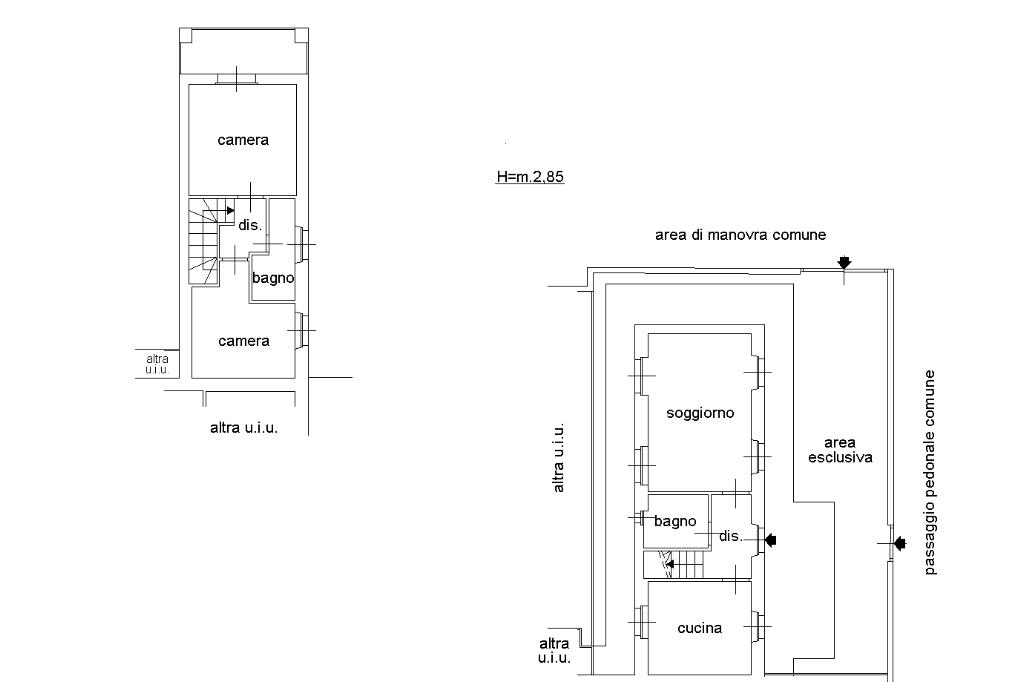
Nel comune di Moncalieri, all’interno della storica Tenuta dei Conti Mazzucchi, proponiamo in vendita un’elegante soluzione abitativa su due livelli.
L’appartamento, dal design moderno e curato nei dettagli, è collegato internamente da una scala che unisce armoniosamente gli ambienti.

Al piano principale con accesso indipendente si trova una spaziosa cucina abitabile, un luminoso soggiorno con affaccio sul giardino privato e un bagno di servizio per gli ospiti. Il giardino esclusivo offre uno spazio esterno riservato e accogliente, ideale per momenti di relax o per ospitare amici e familiari.

Al piano superiore la zona notte, due le camere da letto ed un secondo bagno con finestra. La camera padronale si affaccia su un grazioso terrazzo con vista aperta sul verde.

La proprietà offre inoltre un posto auto privato e un box auto da acquistare ad Euro 15.000, garantendo massima comodità e praticità.

L’architettura raffinata e le finiture di pregio si integrano perfettamente con il contesto storico e naturale della tenuta, offrendo un’abitazione confortevole con caratteristiche d'epoca, funzionale e di grande charme.

Questa proposta rappresenta un’opportunità unica per chi desidera vivere in una dimora elegante, immersa nella tranquillità e nel prestigio di un contesto esclusivo, senza rinunciare alla comodità dei collegamenti con Torino e i principali servizi.

Una cantina posizionata al piano terreno completa la proprietà.

Mostra tutto

Nelle vicinanze

Trasporto pubblico Trasporto pubblico
stazione di Moncalieri
stazione di Moncalieri
2,5 Km
Moncalieri Sangone
Moncalieri Sangone
2,6 Km
Tagliaferro
Tagliaferro
220 m
Tetti Piatti N.70
Tetti Piatti N.70
280 m
Ricariche auto elettriche Ricariche auto elettriche
Sede Enel Moncalieri | EnelX
1,8 Km
Nichelino Kennedy | EnelX
1,9 Km
Nichelino Cernobyl | EnelX
1,9 Km
EnelX Fast Moncalieri
2,1 Km
Lidl Moncalieri
2,4 Km
Scuole Scuole
Scuole
400 m
Scuola Media Martiri della Resistenza
1,7 Km
Elementare Don Milani
1,9 Km
Materna Rodari
1,9 Km
Materna Anna Frank
2,2 Km
Farmacia Farmacia
Farmacia Premi
370 m
Farmacia
1,5 Km
Farmacia Salus
1,7 Km
Farmacia Armonia
1,8 Km
Farmacia Largo Giusti
2,1 Km
Supermercati Supermercati
Il Gigante
1,5 Km
Lidl
2,4 Km
U2 SUPERMERCATI
2,7 Km
Porte di Moncalieri
3,0 Km
Negozi Negozi
Negozi
420 m
Kiabi
2,9 Km
Facit
2,9 Km
OVS
2,9 Km
L'Atelier dei Leprotti
3,0 Km
Bar Bar
Bar
420 m
Hermitage Bistrot
2,8 Km
Facis
3,0 Km
Ristoranti Ristoranti
Ristoranti
2,0 Km
Pizzeria Ristoro Willy 2
2,5 Km
Agriturismo Villa Albina
2,6 Km
Acqua farina e sale
2,9 Km
Ristorante Cinese Corona di Giada
3,0 Km
Mostra tutto

Caratteristiche

Rif.:
61131618
Piano:
Terra con giardino di 2
Totale piani:
2
Box:
1
Posti auto:
1
Terrazzi:
1
Mostra tutto
Prezzo Prezzo
€ 244.000
Prezzo box Prezzo box
€ 15.000
Rata mutuo Rata mutuo
€ 1.154 / mese
Spese annue Spese annue
€ 1.050
Proponi il tuo prezzoProponi il tuo prezzo

Classe Energetica

F
F
F
F
F
F
F
F
F
EP globale non rinnovabile:
231.20 kW h/m² anno
EP globale rinnovabile:
1.03 kW h/m² anno
EP invernale del fabbricato:
EP estiva del fabbricato:
Anno di costruzione:
2014
Riscaldamento:
Autonomo
Tipo impianto:
A radiatori
Tipo alimentazione:
Metano

Prezzo ridotto di €1 (8%%)

Ti interessa visionare l'immobile?

Fissa un appuntamento  Fissa un appuntamento

Richiedi informazioni

Clicca su Leggi per aprire l'informativa
* Questi campi sono obbligatori

Calcola il tuo mutuo

Semplice e senza impegno
Anticipo

( % )
Mutuo

( % )

pochi semplici passi

inserisci i tuoi dati
Questionario completato
Grazie per aver richiesto un appuntamento senza impegno con un nostro Consulente del Credito e Assicurativo.

Hai inserito correttamente tutti i dati necessari e a breve riceverai una e-mail con un link da convalidare per inviare i tuoi dati.
Affiliato
Moncalieri Re Sas
Viale Porta Piacentina, 41 10024 Moncalieri (TO)

Il nostro staff


  • Paolo Cardone
    Affiliato

  • Carlotta Giammanco
    Affiliata

  • Gianluca Castellaneta
    Affiliato
Viale Porta Piacentina, 41 10024 Moncalieri (TO)
Zona: Moncalieri Centro Storico - Collina - Pleiadi
Mostra su mappa
Orari: dal lunedì al venerdì dalle 9.00 alle 12.30 e dalle 14.30 alle 20.00; sabato chiusura alle ore 17.30
Affiliato
Moncalieri Re Sas
Viale Porta Piacentina, 41 10024 Moncalieri (TO)

2026 Tecnocasa Franchising S.p.A. - P. IVA 08365160152 - Via Monte Bianco 60/A 20089 Rozzano (MI). Ogni agenzia ha un proprio titolare ed è autonoma. Privacy policy | Policy utilizzo | Cookie policy