Trilocale in vendita

Moncalieri, Via S. Vincenzo - Borgo Mercato
€ 158.000
3 locali 3 locali
103 Mq 103 Mq
1 bagno 1 bagno

Trilocale in vendita

Moncalieri, Via S. Vincenzo - Borgo Mercato

Descrizione annuncio

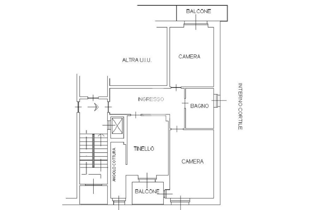
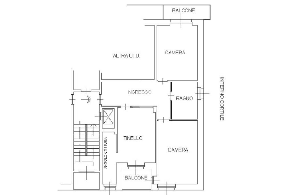
Via San Vincenzo. Al quarto piano con ascensore proponiamo un luminoso appartamento ideale per chi desidera una soluzione comoda e ben servita.

L’immobile si apre su un ingresso con corridoio che disimpegna in modo funzionale tutti gli ambienti, il tinello con cucinotto finestrato ha l’accesso al primo balcone, mentre la zona notte è composta da due ampie camere matrimoniali, una delle quali con secondo balcone. Il bagno, completamente ristrutturato, è spazioso, finestrato e dotato di un comodo box doccia.

La doppia esposizione garantisce un’ottima luminosità in tutti gli ambienti. L’appartamento è stato parzialmente ristrutturato con la sostituzione degli infissi doppi vetri.

Completano la proprietà una cantina e il riscaldamento centralizzato con termovalvole, che consentono di ottimizzare i consumi.

La zona è altamente servita, con negozi, scuole e mezzi pubblici nelle immediate vicinanze, rendendo questo appartamento un’ottima scelta per chi cerca una casa pronta da abitare in una posizione strategica.

Mostra tutto

Nelle vicinanze

Trasporto pubblico Trasporto pubblico
Bengasi
Bengasi
2,0 Km
Italia61
Italia61
2,7 Km
stazione di Moncalieri
stazione di Moncalieri
420 m
Moncalieri Sangone
Moncalieri Sangone
690 m
Trieste Est
Trieste Est
110 m
Ricariche auto elettriche Ricariche auto elettriche
EnelX Fast Moncalieri
760 m
Lidl Moncalieri
810 m
Sede Enel Moncalieri | EnelX
1,1 Km
Nichelino Cernobyl | EnelX
1,6 Km
Eneldrive Esselunga di Moncalieri
1,7 Km
Scuole Scuole
Università delle Tre Età
540 m
Elementare Barruero
590 m
Collegio Carlo Alberto
690 m
Scuola Primaria "Boccia d'Oro"
1,3 Km
Scuola Primaria "Maria Montessori"
1,3 Km
Farmacia Farmacia
Farmacia Ceriana
400 m
Farmacia Borgo Navile
450 m
Farmacia Maldini
690 m
Santa Maria
850 m
Farmacia De Grazia
900 m
Ospedali Ospedali
Ospedale Santa Croce
1,1 Km
Supermercati Supermercati
Lidl
860 m
in's
1,3 Km
Carrefour
1,5 Km
Esselunga
1,7 Km
Absolute Store - Calcio e materiale sportivo
1,9 Km
Negozi Negozi
FmGroup
780 m
La Terra di Mezzo
900 m
Negozi
920 m
L'Atelier dei Leprotti
970 m
Facit
1,4 Km
Bar Bar
Bar Liceo
2,1 Km
bar roma
2,3 Km
Bar
2,4 Km
Hermitage Bistrot
2,6 Km
Re Sole
2,7 Km
Ristoranti Ristoranti
Pizzeria Ristoro Willy 2
530 m
Pizzeria Roma 4
620 m
Al Castello
790 m
La Darsena
800 m
Acqua farina e sale
880 m
Mostra tutto

Caratteristiche

Rif.:
61137945
Piano:
4 di 5 con ascensore (Piano alto)
Balconi:
2
Camere da letto:
2
Arredamento:
Assente
Condizionamento:
Autonomo
Mostra tutto
Prezzo Prezzo
€ 158.000
Rata mutuo Rata mutuo
€ 728 / mese
Spese annue Spese annue
€ 1.000
Proponi il tuo prezzoProponi il tuo prezzo

Classe Energetica

D
D
D
D
D
D
D
D
D
EP invernale del fabbricato:
EP estiva del fabbricato:
Anno di costruzione:
1967
Riscaldamento:
Centralizzato
Tipo impianto:
A radiatori
Tipo alimentazione:
Metano

Ti interessa visionare l'immobile?

Fissa un appuntamento  Fissa un appuntamento

Richiedi informazioni

* Questi campi sono obbligatori

Calcola il tuo mutuo

Semplice e senza impegno
Anticipo

( % )
Mutuo

( % )

pochi semplici passi

inserisci i tuoi dati
Questionario completato
Grazie per aver richiesto un appuntamento senza impegno con un nostro Consulente del Credito e Assicurativo.

Hai inserito correttamente tutti i dati necessari e a breve riceverai una e-mail con un link da convalidare per inviare i tuoi dati.
Affiliato
Moncalieri Re Sas
Viale Porta Piacentina, 41 10024 Moncalieri (TO)

Il nostro staff


  • Paolo Cardone
    Affiliato

  • Carlotta Giammanco
    Affiliata

  • Gianluca Castellaneta
    Affiliato
Viale Porta Piacentina, 41 10024 Moncalieri (TO)
Zona: Moncalieri Centro Storico - Collina - Pleiadi
Mostra su mappa
Orari: dal lunedì al venerdì dalle 9.00 alle 12.30 e dalle 14.30 alle 20.00; sabato chiusura alle ore 17.30
Affiliato
Moncalieri Re Sas
Viale Porta Piacentina, 41 10024 Moncalieri (TO)

2025 Tecnocasa Franchising S.p.A. - P. IVA 08365160152 - Via Monte Bianco 60/A 20089 Rozzano (MI). Ogni agenzia ha un proprio titolare ed è autonoma. Privacy policy | Policy utilizzo | Cookie policy